110 Hood Rd Sulphur, LA 70665

Vacant Land MLS #: SWL25002995 Listed By CENTURY 21 Bono Realty
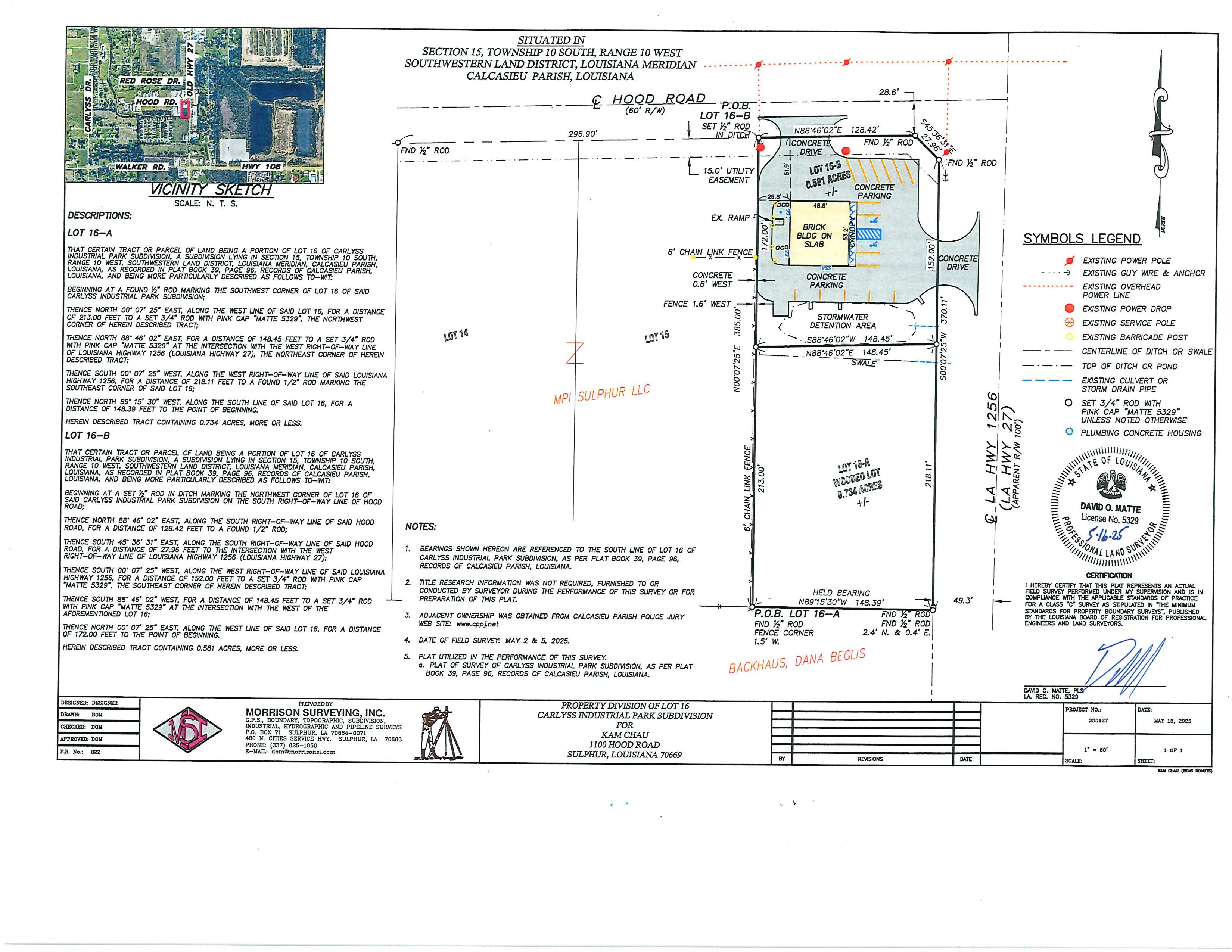
Survey

Property InformationDescription

Introducing a premier commercial opportunity at 110 Hood in Sulphur, LA 70665. This prime real estate offering spans 0.734 acres of valuable land, perfectly situated on bustling Hwy 27. Surrounded by a dynamic mix of industrial and commercial sales enterprises, as well as convenient banking institutions, this property stands as an ideal laundpad for your new business venture or the next strategic location for an expanding company. The expansive and versatile lot presents endless potential for commercial dealers, savvy retailers, and discerning investors aiming to capitalize on the high visibility and traffic of the area. Whether you envision a custom-built storefront, a specialized service center, or a thriving retail complex, 110 Hood offers the foundation for success. Don't miss out on this exceptional commercial property in Sulphur, LA, where opportunity and location merge to create the perfect setting for business growth and investment prosperity. Property has been newly surveyed to separate it from the building and land on the corner. The drainage ditch is attached to 110 Hood, not this 0.734 acre tract. Land will be re-assessed and given a new parcel after closing. MLS# SWL25002995

Features

  • Cross Docks: N
  • For Auction: N
  • Lot Description: Access Type - Road
  • Lot Size In Text: 0.734 Acres
  • MLSID: SWL25002995
  • Price Upon Request: N
  • Road Type: City / Town Street
  • Style: Not Applicable
  • Sublease: N
  • Zoning: Commercial
  • Zoning: Commercial

MAP & DIRECTIONS

Get Directions
110 Hood Rd, Sulphur, LA 70665
View Directions